Gemengd gebruik te huur - Perwijs
Perwez – Magazijn + kantoren van 280 m²
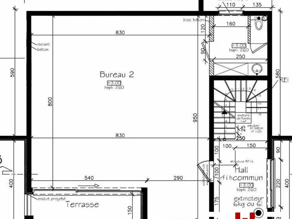
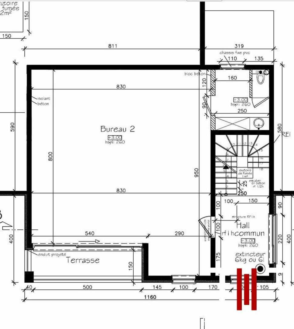
Ideaal gelegen in de onmiddellijke nabijheid van de E411, in een recent, verzorgd en perfect onderhouden gebouw, biedt J&J Properties een polyvalente ruimte aan die opslag en kantoren combineert, ideaal voor ondernemers, zelfstandigen en KMO’s.Het magazijn bestaat uit een ruime opslagruimte (200 m²) op het gelijkvloers, met een douchekamer en een apart toilet, evenals een kantoorruimte (80 m²) op de eerste verdieping. Deze verdieping beschikt over een kitchenette, een apart toilet en een aangenaam terras. Virtueel bezoek van de verdieping: https://my.matterport.com/show/?m=yopp4KdqhDi
Vijf privatieve parkeerplaatsen en toegang tot een gemeenschappelijke tuin zorgen voor extra dagelijks comfort.
Het pand beschikt over kwalitatieve voorzieningen zoals vloerverwarming, een elektrische sectionale poort (4x4 m), een driefasige elektrische installatie, een regenwatertank, een ventilatiesysteem met dubbele flux, een alarmsysteem met buitencamera’s en brandbeveiliging. Dit geheel garandeert optimaal comfort, verhoogde veiligheid en een uitstekende energie-efficiëntie.
Huurprijs: €1.200 excl. btw voor het magazijn en €1.000 voor de kantoorruimte.
Voorschot op kosten: €150/maand (gas, elektriciteit, internet) + €150/maand voor de onroerende voorheffing.
ONMIDDELLIJK BESCHIKBAAR!
Zeker een bezoek waard!
Ref. 7632370
In het kort
- 280,00 m²
- 5 parkeerplaatsen
- Nee
- Gelijkvloers
Oppervlaktes
- Bruto bewoonbare opp.:
- 280,00 m²
- Bureau:
- 80,00 m²
Technisch
- Elektriciteitskeuring:
- Ja, conform
- Dubbel glas:
- Ja
- Verwarming:
- Gas
- Waterverzachter:
- Nee
- Aansluiting gas:
- Ja
- Aansluiting riolering:
- Ja
Admin & financieel
- Beschikbaarheid:
- Onmiddellijk
- Onder BTW stelsel:
- Nee
- Kosten:
- € 300,00 p/m
Goed om te weten
- Verdieping:
- Gelijkvloers
- Aantal verdiepingen:
- 1
- Kelder:
- Nee
- Zolder:
- Nee
- Alarm:
- Ja
- Rolluiken:
- Ja
Marie-Lou Verriest
Vastgoedmakelaar Brussel
+32 471 79 43 92
Wil je meer info?
Contacteer ons
'Emile'
Gemengd gebruik
€ 2.200 p/m
Perwijs
Wilt u het adres weten?
Log in om te bekijken














