Kantoor te koop - Ukkel
Avenue Brugmann – Kantoor of appartement met 4 slaapkamers
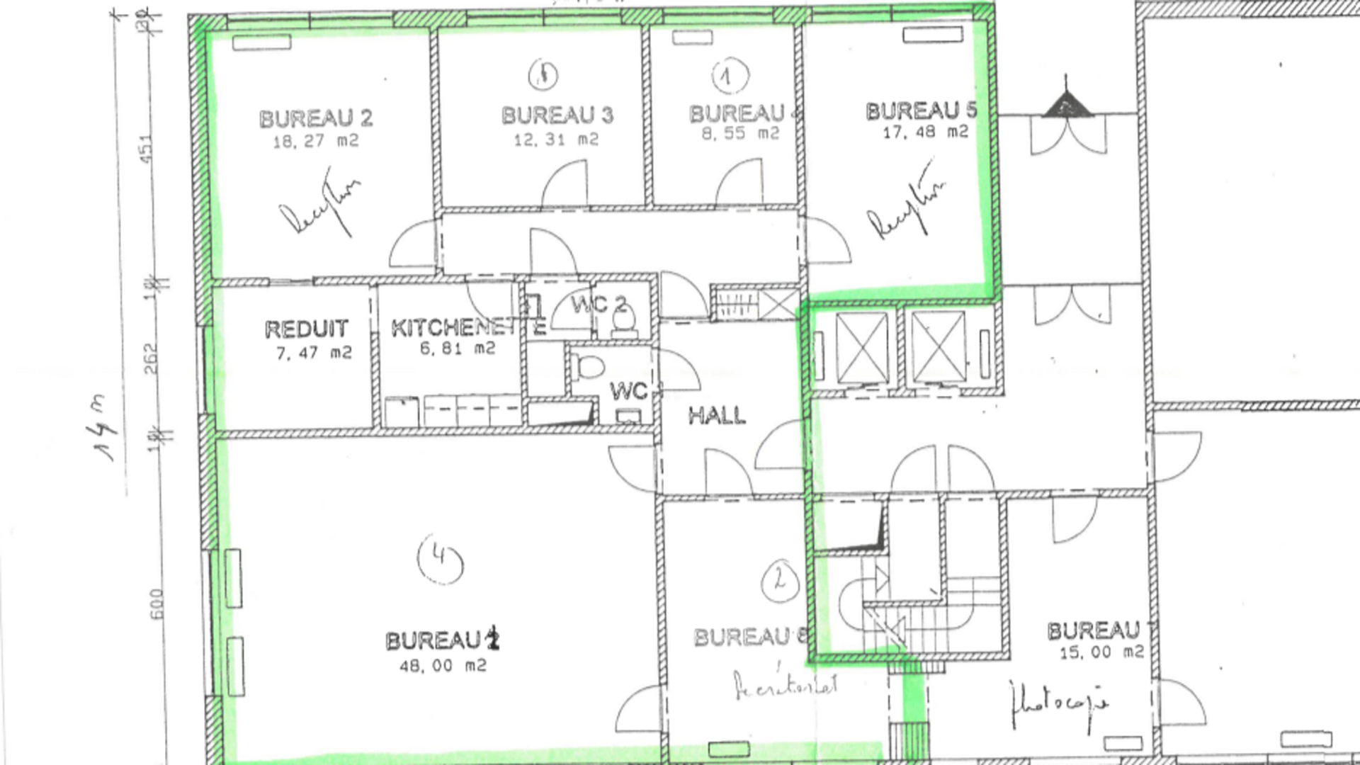
Gelegen in een rustige en residentiële straat, vlakbij de Avenue Brugmann, biedt dit ruime gelijkvloers van 199 m² een ideale ligging, dicht bij het openbaar vervoer (tram Messidor op 100 m), tal van winkels, scholen en supermarkten. Het pand is stedenbouwkundig erkend als een appartement met 4 slaapkamers, maar wordt al sinds het begin als kantoor gebruikt, waardoor een dubbel gebruik mogelijk is: professioneel of residentieel.Dit kantoor geniet van een vrij uitzicht op het groen, is zeer licht en beschikt over grote volumes. Het bestaat uit een inkomhal in marmer met talrijke ingebouwde kasten, een ruimte van 15 m² die als keuken ingericht kan worden, en een ruime polyvalente ruimte van ±50 m² op het zuiden gericht. Een gang geeft toegang tot vier grote kamers van 19, 18, 13 en 9 m², twee aparte toiletten, en een kitchenette. Dankzij de doorzonindeling en de royale volumes biedt dit pand tal van mogelijkheden, zowel als prestigieus kantoor als om te transformeren tot een familieappartement met 4 slaapkamers.
Het volledige kantoor is bekabeld (internet en telefoon), het gebouw beschikt over een bezoekersparking en parkeren op straat is eenvoudig.
Technisch: individueel elektrisch verwarmingssysteem, houten ramen met dubbel glas en rolluiken, elektriciteit niet conform, EPB G. De maandelijkse lasten bedragen 295 € en omvatten conciërge, onderhoud van de gemeenschappelijke delen, lift, syndicus, privéwater en de bijdrage aan het reservefonds.
Ideaal gelegen, zeer licht en met een uitzicht op het groen in een rustige en residentiële omgeving, vormt dit pand een zeldzame kans voor professioneel of residentieel gebruik in Ukkel.
Ref. 7605295
In het kort
- 199,00 m²
- Nee
- Nee
- Gelijkvloers
Oppervlaktes
- Bruto bewoonbare opp.:
- 199,00 m²
- Bureau:
- 199,00 m²
Technisch
- EPC:
- 503 kWh/m²
- CO2 uitstoot:
- 79kg/m²
- Elektriciteitskeuring:
- Ja, Niet conform
- Dubbel glas:
- Ja
- Type ramen:
- Hout
- Type verwarming:
- Individueel
- Bouwjaar:
- 1972
- Lift:
- Ja
Admin & financieel
- Beschikbaarheid:
- Vanaf akte
- Bewoond:
- Nee
Goed om te weten
- Verdieping:
- Gelijkvloers
- Aantal verdiepingen:
- 11
- Zonnepanelen:
- Nee
- Kelder:
- Nee
- Zolder:
- Nee
- Alarm:
- Nee
- Gepantserde deur:
- Ja
- Rolluiken:
- Ja
- Air conditioning:
- Nee
Pauline Preud'homme
Vastgoedmakelaar Brussel
+32 478 92 41 23
Wil je meer info?
Contacteer ons
'Walzin' - Av. Brugmann / Winston Churchill
Kantoor
€ 430.000
Ukkel
Wilt u het adres weten?
Log in om te bekijken




















