Appartement te koop - Elsene
Fernand Cocq - Appartement met 1 slaapkamer
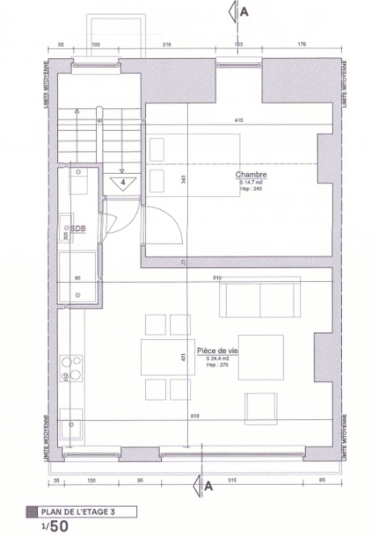
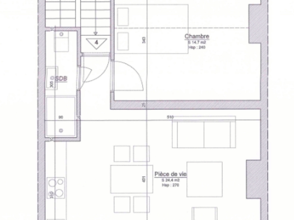
Gelegen op een steenworp van het Fernand Cocqplein en op enkele minuten van Flagey, in een rustige straat, op de bovenste verdieping van een kleine mede-eigendom van 4 units met lage lasten, biedt J&J Properties dit mooie, volledig gerenoveerde en lichtrijke 1-slaapkamerappartement aan. Een uitstekende investeringsopportuniteit in het hart van Elsene.Indeling: inkomhal, ruime slaapkamer met ingebouwde kasten, douchekamer met toilet, ruime leefruimte met open keuken. Zolder (mogelijkheid tot duplex, mits vergunning).
Privatieve kelder en gemeenschappelijke wasruimte vervolledigen het geheel.
Het pand is momenteel verhuurd voor €1.150/maand (exclusief lasten), wat een rendement van 4,05% oplevert.
Troeven: topligging, rustige straat, kleine mede-eigendom, gerenoveerd appartement en meerwaardepotentieel.
Te bezoeken zonder uitstel.
REF J&J: 7662863
Ref. 7662863
In het kort
- 1
- 1
- 55,00 m²
- Nee
- Nee
- 3de verdieping
Oppervlaktes
- Bruto bewoonbare opp.:
- 55,00 m²
- Woonkamer:
- 28,00 m²
- Slaapkamer:
- 15,00 m²
- Badkamer:
- 3,00 m²
Technisch
- EPC:
- 282 kWh/m²
- CO2 uitstoot:
- 56kg/m²
- Elektriciteitskeuring:
- Ja, conform
- Dubbel glas:
- Ja
- Type ramen:
- PVC
- Verwarming:
- Gas
- Type verwarming:
- Individueel
- Bouwjaar:
- 1910
- Renovatiejaar:
- 2021
- Lift:
- Nee
- Aansluiting gas:
- Ja
Admin & financieel
- Beschikbaarheid:
- Mits inachtneming huurders
01 mei 2026 - Bewoond:
- Ja
- Huuropbrengst:
- € 14.000,00
- Minimum verhuurprijs:
- € 1.150,00
- Kosten:
- € 75,00 p/m
Goed om te weten
- Verdieping:
- 3de verdieping
- Aantal verdiepingen:
- 3
- Type kookplaten:
- Inductie
- Badkamer:
- Douche
- Wasplaats:
- Ja
Documenten en plannen
Documenten en plannen
Connecteer u om ze te downloaden
Pauline Preud'homme
Vastgoedmakelaar Brussel
+32 478 92 41 23
Wil je meer info?
Vergelijkbare panden
Contacteer ons
'Oliver' (Fernand Cocq)
Appartement
€ 300.000
Elsene
Wilt u het adres weten?
Log in om te bekijken











