Appartement à vendre - Ixelles
Fernand Cocq - Appartement rénové
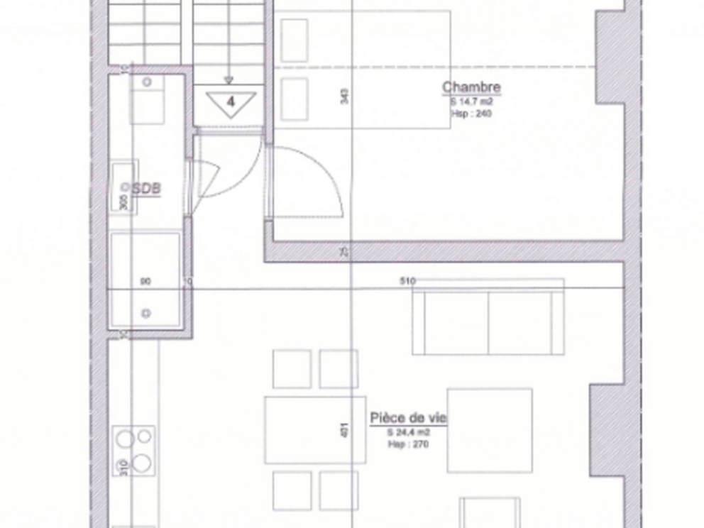
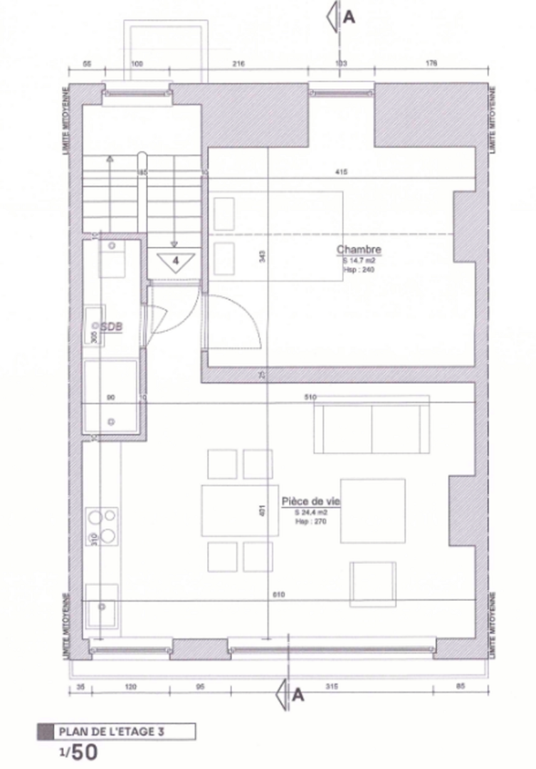
Situé à deux pas de la Place Fernand Cocq et à quelques minutes de Flagey, dans une rue calme, au dernier étage d’une petite copropriété de 4 unités avec faibles charges, J&J Properties vous propose ce bel appartement 1 chambre entièrement rénové et baigné de lumière. Une excellente opportunité d’investissement au cœur d’Ixelles.Composition : hall d’entrée, grande chambre avec placards, salle de douche avec WC, spacieux séjour avec cuisine ouverte. Grenier (potentiel de créer un duplex).
Cave privative et buanderie complètent l’ensemble.
Le bien est actuellement loué 1.150 €/mois hors charges, offrant un rendement de 4,05 %.
Les points forts : localisation, rue calme, petite copropriété, bien rénové et potentiel de valorisation.
À visiter sans tarder.
Plus d’infos : www.jj-properties.be - REF J&J : 7662863
Ref. 7662863
En bref
- 1
- 1
- 55,00 m²
- Non
- Non
- 3ème étage
Surfaces
- Surface habitable:
- 55,00 m²
- Salon:
- 28,00 m²
- Chambre:
- 15,00 m²
- Salle de bains:
- 3,00 m²
Technique
- PEB:
- 282 kWh/m²
- Émissions de CO2:
- 56kg/m²
- Inspection électrique:
- Oui, conforme
- Double vitrage:
- Oui
- Type de fenêtres:
- PVC
- Chauffage:
- Gaz
- Type de chauffage:
- Individuel
- Année de construction:
- 1910
- Année de rénovation:
- 2021
- Ascenseur:
- Non
- Connexion de gaz:
- Oui
Admin & finances
- Disponibilité:
- Fonct. du locataire
01 mai 2026 - Habité:
- Oui
- Revenu locatif:
- € 14.000,00
- Prix location minimum:
- € 1.150,00
- Coûts communs:
- € 75 p/m
communs + assurance + eau
Bon à savoir
- Étage:
- 3ème étage
- Nombre d'étages:
- 3
- Type de plaques de cuisson:
- Induction
- Buanderie:
- Oui
Documents & plans
Documents & plans
Connectez-vous pour les télécharger
Pauline Preud'homme
Agent Immobilier Bruxelles
+32 478 92 41 23
Plus d'informations?
Propriétés similaires
Contactez-nous
'Oliver' (Fernand Cocq)
Appartement
€ 300.000
Ixelles
Voulez-vous connaître l'adresse?
Connectez-vous pour voir la carte











