Appartement à vendre - Uccle
Brugmann - Rez-de-chaussée lumineux de 4 chambres
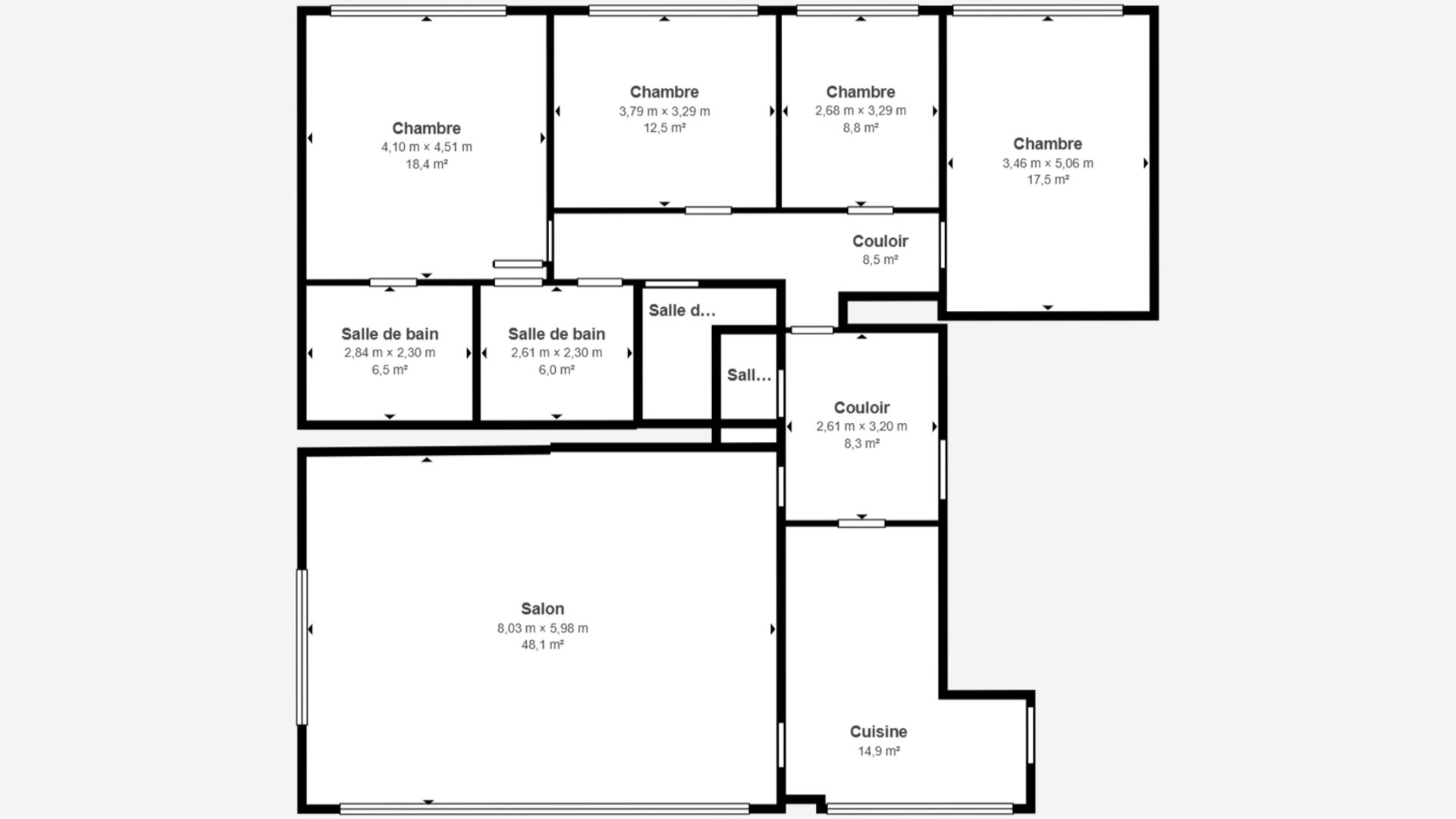
Situé dans une rue calme et résidentielle, à proximité immédiate de l’avenue Brugmann, ce vaste rez-de-chaussée de 199 m² (surface PEB) bénéficie d’une situation idéale, proche des transports en commun (tram Messidor à 100m), de nombreux commerces, écoles et supermarchés.Reconnu à l’urbanisme comme appartement 4 chambres et occupé ces dernières années en bureaux, il offre une double affectation possible : résidentielle ou professionnelle (profession libérale, cabinet médical, bureaux…). Une opportunité rare permettant une grande flexibilité d’usage. Le bien profite d’une vue dégagée sur la verdure, baigné de lumière et offrant de très beaux volumes. Il se compose comme suit : Un hall d’entrée en marbre avec placards encastrés, une pièce de 15 m² pouvant être aisément réaménagée en cuisine, ainsi qu’un vaste espace de vie de ±50 m² orienté sud. Le hall de nuit 4 grandes chambres (19, 18, 13 et 9m²) deux WC séparés, ainsi qu’un espace permettant la création aisée de deux salles de bains. Ses volumes généreux, sa configuration traversante et son orientation offrent de nombreuses possibilités d’aménagement, que ce soit pour créer un appartement familial 4 chambres ou un espace professionnel de standing. Côté technique : chauffage individuel électrique, châssis bois double vitrage avec volets, électricité non conforme et PEB G. Les charges mensuelles s’élèvent à 295€ et comprennent les rémunérations du concierge, du syndic, l’entretien des parties communes, l'assurance, l’eau ainsi que l'approvisionnement du fonds de réserve.
Idéalement situé, très lumineux, offrant une vue sur la verdure dans un environnement calme et résidentiel, ce bien constitue une base exceptionnelle pour un projet sur mesure à Uccle. Une opportunité à saisir.
Ref. 7590911
En bref
- 4
- 2
- 199,00 m²
- Non
- Non
- Rez-de-chaussée
Surfaces
- Surface habitable:
- 199,00 m²
- Salon:
- 50,00 m²
- Cuisine:
- 15,00 m²
- Chambre 1:
- 19,00 m²
- Chambre 2:
- 18,00 m²
- Chambre 3:
- 13,00 m²
- Chambre 4:
- 9,00 m²
- Salle de bains 1:
- 6,00 m²
- Salle de bains 2:
- 6,50 m²
Technique
- PEB:
- 503 kWh/m²
- Émissions de CO2:
- 79kg/m²
- Inspection électrique:
- Oui, Non-conforme
- Double vitrage:
- Oui
- Type de fenêtres:
- Bois
- Type de chauffage:
- Individuel
- Année de construction:
- 1972
- Ascenseur:
- Oui
Admin & finances
- Disponibilité:
- A l'acte
- Habité:
- Non
- Coûts communs:
- € 295 p/m
concierge, syndic, assurance, entretien des communs, eau privative et fonds de réserve
Bon à savoir
- Étage:
- Rez-de-chaussée
- Nombre d'étages:
- 11
- Type de plaques de cuisson:
- Électrique
- Salle de bains 1:
- Non-équipée
- Salle de bains 2:
- Non-équipée
- Vestiaire:
- Oui
- Porte blindée:
- Oui
- Volets:
- Oui
Pauline Preud'homme
Agent Immobilier Bruxelles
+32 478 92 41 23
Plus d'informations?
Propriétés similaires
Contactez-nous
'Walzin' - Av. Brugmann / Winston Churchill
Appartement
€ 430.000
Uccle
Voulez-vous connaître l'adresse?
Connectez-vous pour voir la carte























