Appartement te koop - Ukkel
Brugmann - Lichte gelijkvloerse 4-slaapkamer
Gelegen in een rustige en residentiële straat, op korte afstand van de Avenue Brugmann, geniet dit ruime gelijkvloers van 199 m² (PEB-oppervlakte) van een ideale ligging, vlakbij het openbaar vervoer (tram Messidor op 100 m), tal van winkels, scholen en supermarkten.Het pand is erkend als 4-slaapkamerappartement bij de stedenbouw en werd de afgelopen jaren als kantoor gebruikt. Het biedt een dubbele bestemming: residentieel of professioneel (vrij beroep, medische praktijk, kantoren…), een zeldzame kans met veel flexibiliteit.
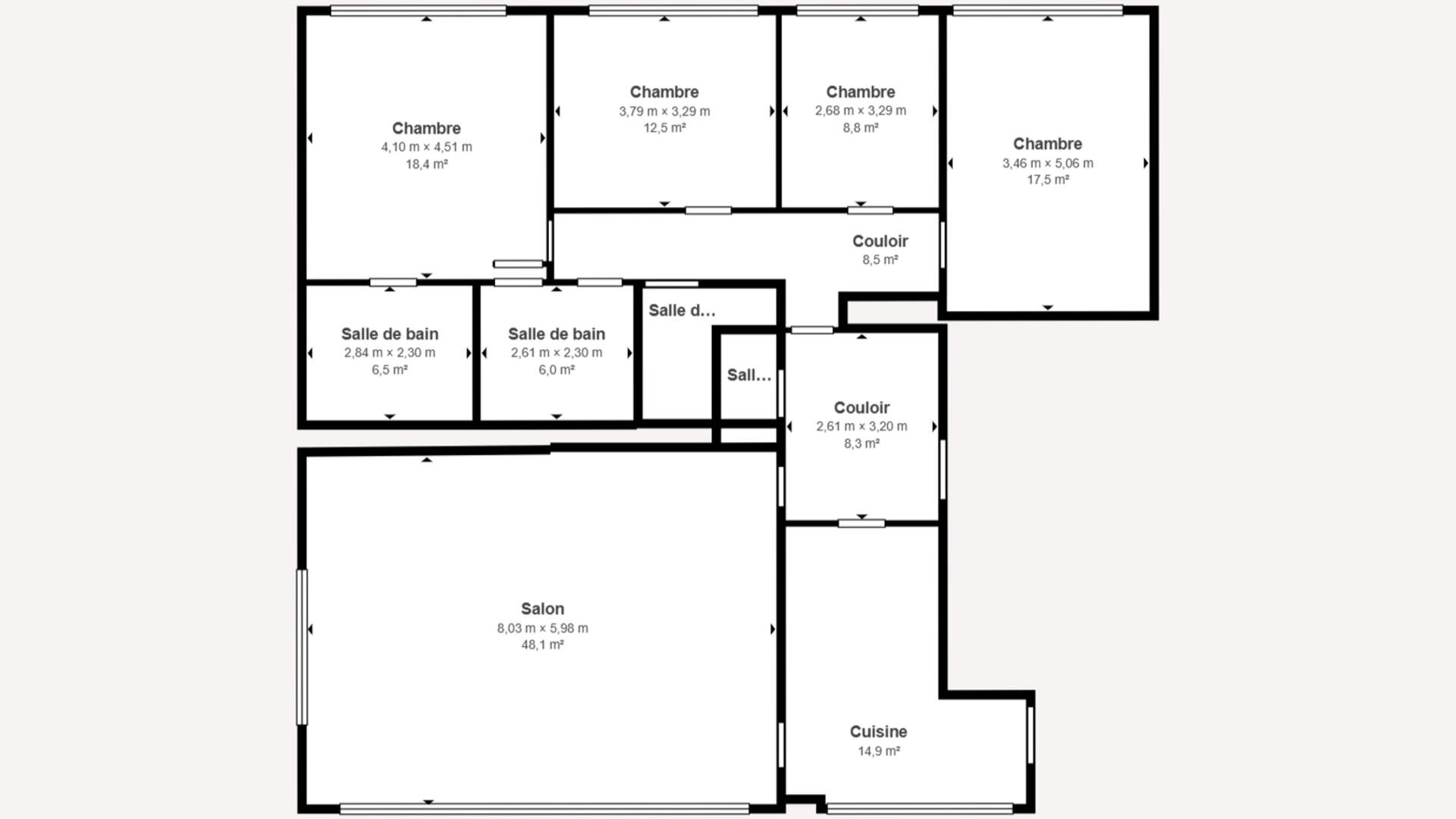
Het appartement geniet van een vrij uitzicht op groen, is zeer licht en biedt prachtige volumes. Het bestaat uit: een marmeren inkomhal met ingebouwde kasten, een kamer van 15 m² die gemakkelijk als keuken kan worden ingericht, en een ruime leefruimte van ±50 m² op het zuiden. De nachthal leidt naar 4 grote slaapkamers (19, 18, 13 en 9 m²), twee aparte toiletten en een ruimte die het gemakkelijk mogelijk maakt twee badkamers te creëren. De royale volumes, de doorlopende indeling en de oriëntatie bieden tal van mogelijkheden, zowel voor een gezinsappartement met 4 slaapkamers als voor een hoogwaardig professioneel kantoor.
Technisch: individuele elektrische verwarming, houten ramen met dubbel glas en rolluiken, elektriciteit niet conform, PEB G.
De maandelijkse lasten bedragen 295 € en dekken de vergoedingen van conciërge en syndicus, het onderhoud van de gemeenschappelijke delen, de verzekering, water en de aanvulling van het reservefonds.
Ideaal gelegen, zeer licht, met uitzicht op groen in een rustige residentiële omgeving, vormt dit pand een uitstekende basis voor een project op maat in Ukkel. Een opportuniteit om niet te missen.
Ref. 7590911
In het kort
- 4
- 2
- 199,00 m²
- Nee
- Nee
- Gelijkvloers
Oppervlaktes
- Bruto bewoonbare opp.:
- 199,00 m²
- Woonkamer:
- 50,00 m²
- Keuken:
- 15,00 m²
- Slaapkamer 1:
- 19,00 m²
- Slaapkamer 2:
- 18,00 m²
- Slaapkamer 3:
- 13,00 m²
- Slaapkamer 4:
- 9,00 m²
- Badkamer 1:
- 6,00 m²
- Badkamer 2:
- 6,50 m²
Technisch
- EPC:
- 503 kWh/m²
- CO2 uitstoot:
- 79kg/m²
- Elektriciteitskeuring:
- Ja, Niet conform
- Dubbel glas:
- Ja
- Type ramen:
- Hout
- Type verwarming:
- Individueel
- Bouwjaar:
- 1972
- Lift:
- Ja
Admin & financieel
- Beschikbaarheid:
- Vanaf akte
- Bewoond:
- Nee
- Kosten:
- € 295,00 p/m
Goed om te weten
- Verdieping:
- Gelijkvloers
- Aantal verdiepingen:
- 11
- Type kookplaten:
- Elektrisch
- Badkamer 1:
- Niet geïnstalleerd
- Badkamer 2:
- Niet geïnstalleerd
- Vestiaire:
- Ja
- Gepantserde deur:
- Ja
- Rolluiken:
- Ja
Pauline Preud'homme
Vastgoedmakelaar Brussel
+32 478 92 41 23
Wil je meer info?
Vergelijkbare panden
Contacteer ons
'Walzin' - Av. Brugmann / Winston Churchill
Appartement
€ 430.000
Ukkel
Wilt u het adres weten?
Log in om te bekijken























