Flat for sale - Uccle
Brugmann - Bright Ground Floor 4-Bedroom
Located in a quiet and residential street, close to Avenue Brugmann, this spacious ground-floor apartment of 199 m² (PEB area) benefits from an ideal location near public transport (Messidor tram at 100 m), numerous shops, schools, and supermarkets.Recognized by urban planning as a 4-bedroom apartment and occupied in recent years as office space, it offers a dual-use possibility: residential or professional (liberal profession, medical practice, offices…). A rare opportunity providing significant flexibility.
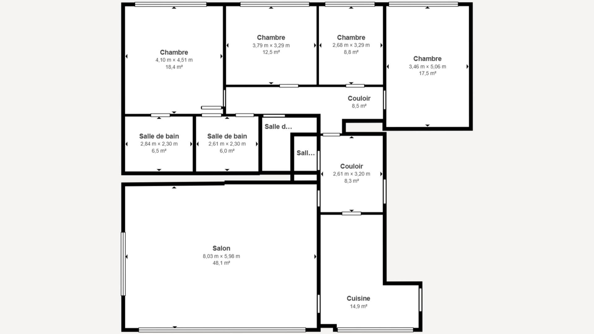
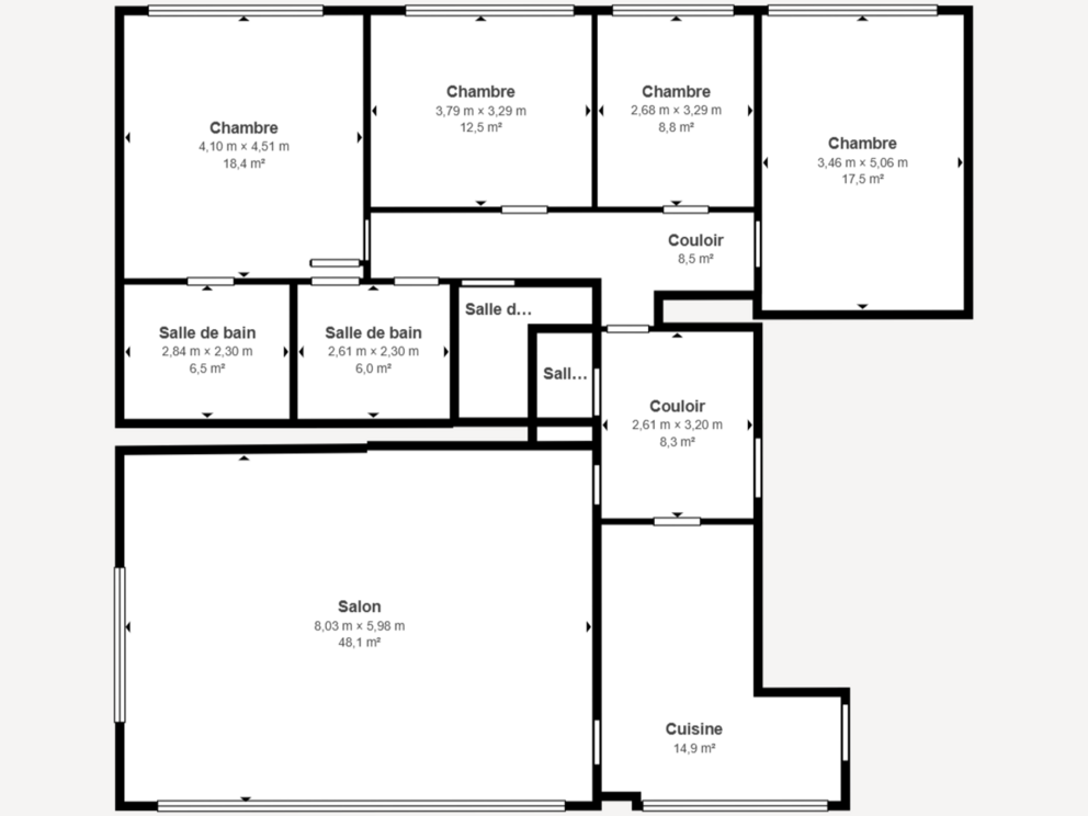
The property enjoys open green views, abundant natural light, and generous volumes. It comprises: a marble entrance hall with built-in storage, a 15 m² room easily convertible into a kitchen, and a large ±50 m² living area facing south. The night hall leads to 4 spacious bedrooms (19, 18, 13, and 9 m²), two separate toilets, and a space allowing the easy creation of two bathrooms. Its generous volumes, through layout, and orientation offer multiple possibilities, whether for a family apartment with 4 bedrooms or a high-standard professional space.
Technical: individual electric heating, wooden double-glazed windows with shutters, non-compliant electricity, PEB G.
Monthly charges amount to €295, covering concierge and management fees, maintenance of common areas, insurance, water, and contribution to the reserve fund.
Ideally located, very bright, with green views in a quiet residential environment, this property provides an exceptional base for a tailor-made project in Uccle. A unique opportunity to seize.
Ref. 7590911
In short
- 4
- 2
- 199,00 m²
- No
- No
- Ground floor
Surfaces
- Surface livable:
- 199,00 m²
- Living room:
- 50,00 m²
- Kitchen:
- 15,00 m²
- Bedroom 1:
- 19,00 m²
- Bedroom 2:
- 18,00 m²
- Bedroom 3:
- 13,00 m²
- Bedroom 4:
- 9,00 m²
- Bathroom 1:
- 6,00 m²
- Bathroom 2:
- 6,50 m²
Technical
- EPC:
- 503 kWh/m²
- CO2 emissions:
- 79kg/m²
- Electricity inspection:
- Yes,
- Double glass:
- Yes
- Window type:
- Wood
- Heater type:
- Individual
- Construction year:
- 1972
- Elevator:
- Yes
Admin & finances
- Availability:
- At deed
- Inhabited:
- No
- Common costs:
- € 295,00 p/m
Good to know
- Floor:
- Ground floor
- Amount of floors:
- 11
- Type of cooking plates:
- Electric
- Bathroom 1:
- Not fitted
- Bathroom 2:
- Not fitted
- Cloakroom:
- Yes
- Armored door:
- Yes
- Shutters:
- Yes
Pauline Preud'homme
Real Estate Agent Brussels
+32 478 92 41 23
Want more info?
Similar properties
Contact us
'Walzin' - Av. Brugmann / Winston Churchill
Flat
€ 430.000
Uccle
Would you like to know the address?
Login to view location























